Modern Outdoor Oasis with Custom Pool House

Project Description

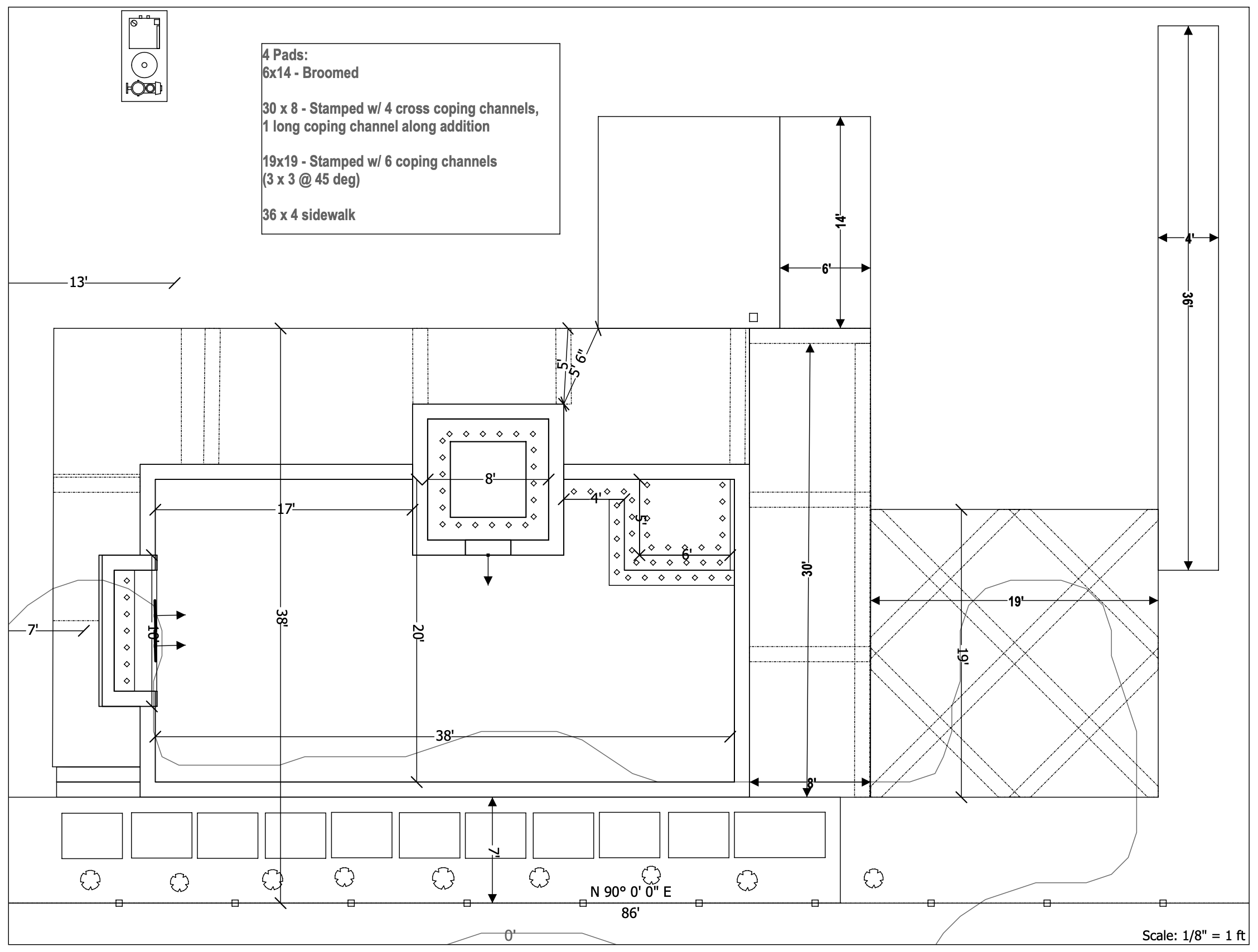
This project showcases Ozark Home Services’s commitment to exceptional quality, thoughtful design, and seamless execution. Designed in collaboration with the Hansens, the scope included a 38′ x 20′ modern pool with an integrated 8′ x 8′ hot tub, a striking 10′ wide waterfall feature, an expansive entertaining pad, and a custom-built pool house with a full bathroom. Ozark Home Services transformed the initial concepts into a refined outdoor living environment that balances modern aesthetics with timeless functionality.

The pool house was carefully designed to complement the existing home while echoing the contemporary lines of the pool, featuring two triple-wide glass sliding doors that open directly to the pool and entertaining area, along with high-set windows that flood the great room with natural light. Year-round comfort is ensured with a dual-head mini-split heat pump system, while recessed LED lighting enhances both the great room and bathroom.

The bathroom itself is a standout, featuring floor-to-ceiling marble tile in a sophisticated two-tone palette, a rimless glass shower enclosure, rain-style overhead shower, and coordinated black fixtures throughout. Every element—from material selection to layout and finishes—reflects Alpha Echo’s dedication to precision, durability, and delivering spaces that elevate how homeowners live and entertain.

Project Details

Categories: